双行审公〔2023〕43号
根据《楚雄州实施“阳光规划”的意见》,现对以下建设项目行政许可进行批前公示,社会各界人士若有意见和建议,请在公示期内向公示组织电话或书面反映。
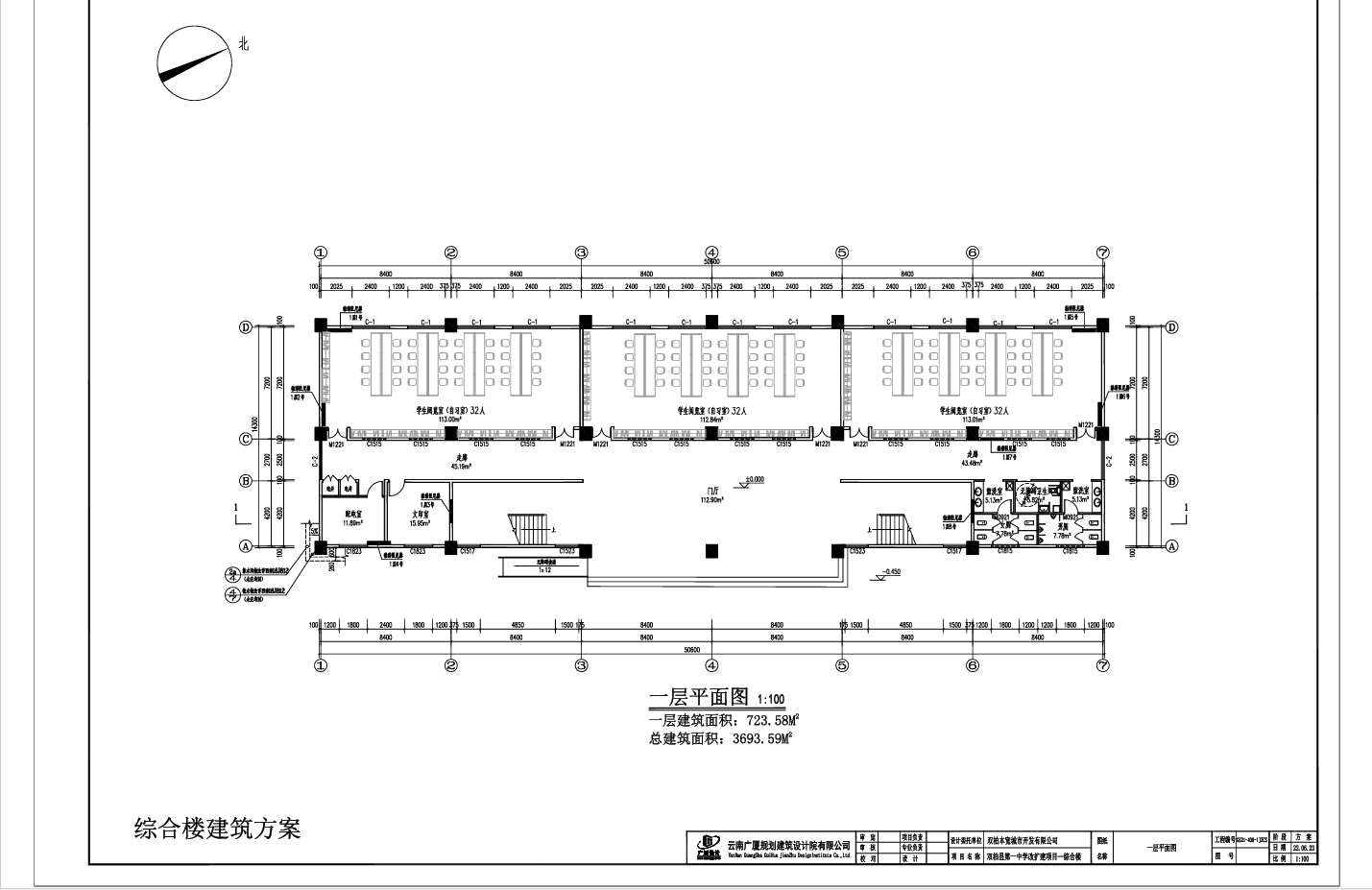
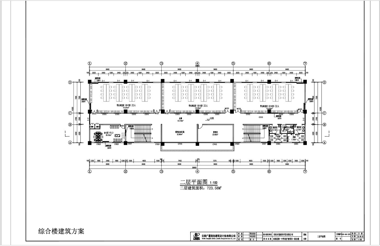
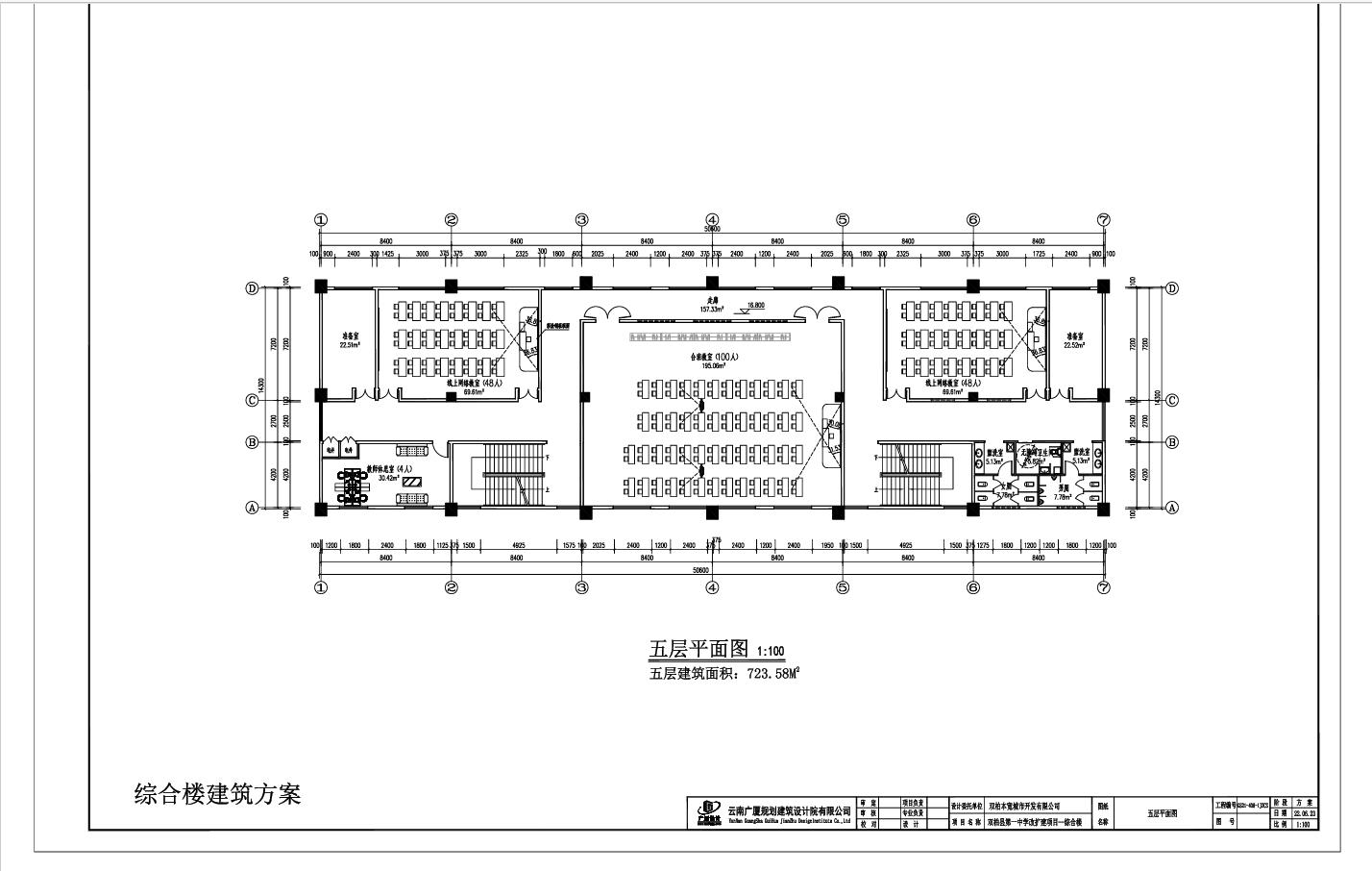
项目名称:双柏县第一中学改扩建项目(新建综合楼)
申请单位:双柏县第一中学
许可事项:建设工程规划许可证
公示类别:批前公示
公示时间:2023年11月02日 至2023年11月08日
公示地点:项目所在地、县城主要街道
公示网址:双柏县人民政府门户网站
公示组织:双柏县行政审批局
意见反馈联系电话:0878-7711191
项目简介:(单位:平方米、万元)
项目位置:双柏县妥甸镇文康路边(双柏一中校园内)
用地性质:教育科研用地
用地面积:723.58
建筑面积:3693.58
投资规模:950
附图:建筑单体平面图、立面图、剖面图
双柏县行政审批局
2023年11月02日






