双行审公〔2025〕18号
根据《楚雄州实施“阳光规划”的意见》,现对以下建设项目行政许可进行批前公示,社会各界人士若有意见和建议,请在公示期内向公示组织电话或书面反映。
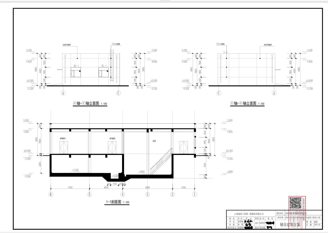
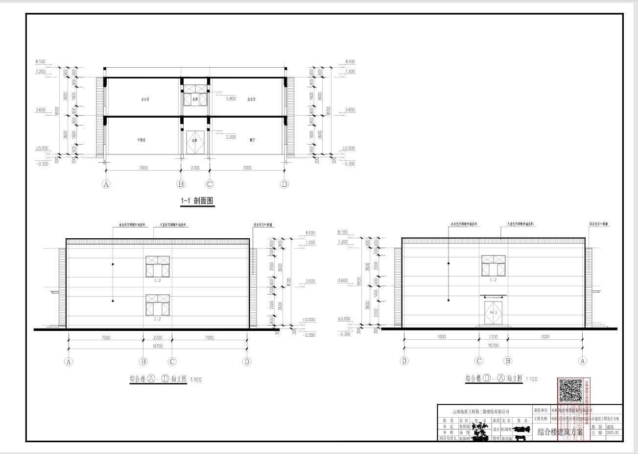
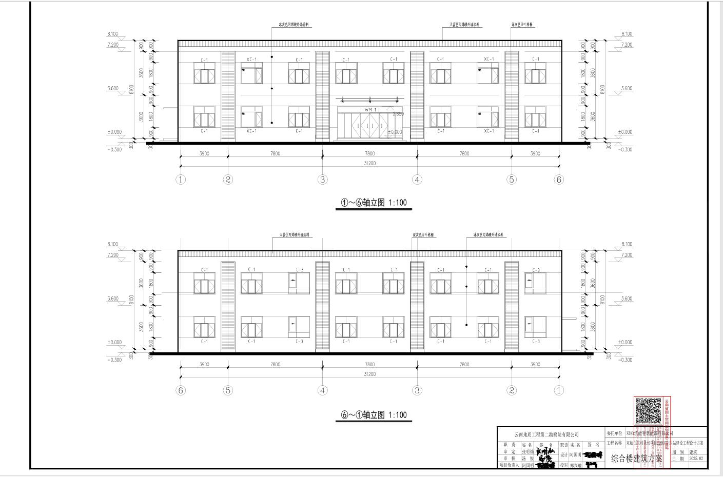
项目名称:双柏白玉村光伏项目220KV升压站
申请单位(个人):双柏滇能智慧能源有限公司
许可事项:建设工程规划许可证
公示类别:批前公示
公示时间:2025年05月21日至2025年05月27日
公示地点:项目所在地、乡镇主要街道
公示网址:双柏县人民政府门户网站
公示组织:双柏县行政审批局
意见反馈联系电话:0878-7711191
项目简介:(单位:平方米、万元)
项目位置:双柏县大庄镇柏子村委会柏子村
用地性质:供电用地
用地面积:15620平方米
建筑面积:2284.71平方米
投资规模:1225.89万元
附图:总平面布置图、立面图、剖面图
双柏县行政审批局
2025年05月21日



