双行审公〔2025〕25号
根据《楚雄州实施“阳光规划”的意见》,现对以下建设项目行政许可进行批前公示,社会各界人士若有意见和建议,请在公示期内向公示组织电话或书面反映。
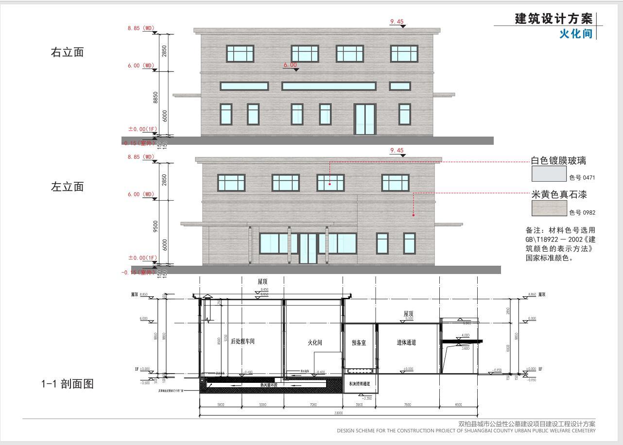
项目名称:双柏县城市公益性公墓建设项目二期
申请单位(个人):双柏县民政局
许可事项:建设工程规划许可证
公示类别:批前公示
公示时间:2025年07月08日至2025年07月14日
公示地点:项目所在地、乡镇主要街道
公示网址:双柏县人民政府门户网站
公示组织:双柏县行政审批局
意见反馈联系电话:0878-7711191
项目简介:(单位:平方米、万元)
项目位置:双柏县妥甸镇中山社区居委会菖蒲冲村民小组
用地性质:殡葬用地
用地面积:47662.55平方米
建筑面积:1595.05平方米
投资规模:5795.48万元
附图:总平面布置图、立面图、剖面图、鸟瞰图
双柏县行政审批局
2025年07月08日





