网站首页 >> 部门目录 >> 双柏县政管局

刘樱双柏县SB-2021-22号地块(农业银行棚户区改造腾空地块)建设项目《建设工程规划许可证》行政许可批前公示

索引号:sbxzgj /2025-00176 公文范围:公开 发文日期:2025年11月19日 发布机构:双柏县政管局 文  号: 生效日期:

双行审公〔2025〕43号

根据《楚雄州实施“阳光规划”的意见》,现对以下建设项目行政许可进行批前公示,社会各界人士若有意见和建议,请在公示期内向公示组织电话或书面反映。

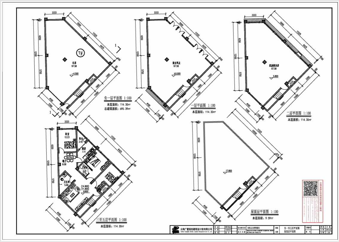
项目名称:双柏县SB-2021-22号地块(农业银行棚户区改造腾空地块)建设项目

申请单位(个人):刘樱

许可事项:建设工程规划许可证

公示类别:批前公示

公示时间:2025年11月19日 至2025年11月25日

公示地点:项目所在地、县城(乡镇)主要街道

公示网址:双柏县人民政府门户网站

公示组织:双柏县行政审批局

意见反馈联系电话:0878-7711191

项目简介:(单位:平方米、万元)

项目位置:双柏县城查姆大道(农行旁)

用地性质:居住用地

用地面积:115平方米

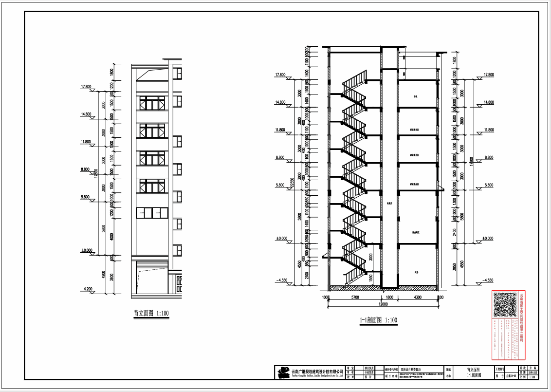
建筑面积:695.39平方米

投资规模:104.31万元

附图:总平面布置图、立面图、剖面图、鸟瞰图

双柏县行政审批局

2025年11月19日




【关闭】
相关文章不存在