根据《楚雄州实施“阳光规划”的意见》,现对双柏县妥甸镇人民政府双柏县妥甸镇红康社区建设项目修建性详细规划进行审查前公示,社会各界人士若有意见和建议,请在公示期内向公示组织单位电话或者书面反映。
项目名称:双柏县妥甸镇红康社区
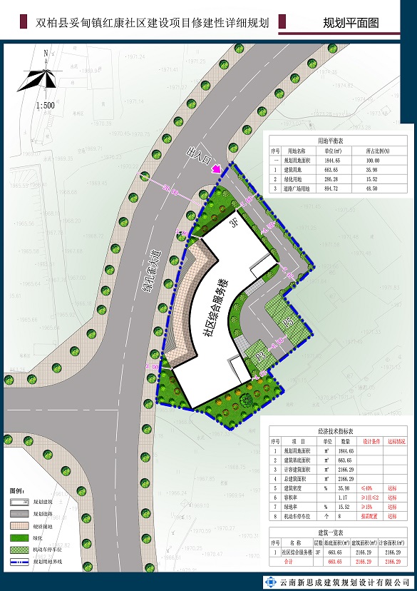
项目地点:东临县人民政府、西临规划的绿孔雀大道
建设单位:双柏县妥甸镇人民政府
公示类型:修建性详细规划审查前公示
公示时间:2024年3月7日至2024年3月13日
公示地点:项目所在地、县城主要街道
公示网址:双柏县人民政府门户网站
公示组织单位:双柏县自然资源局
意见反馈电话:0878-7721516
项目简介:该项目总用地面积1844.65平方米(2.767亩),总建筑面积为2166.29平方米,建筑密度35.98% ,容积率1.17,绿地率15.52%,估算总投资756.92万元。
附件:区域位置图、总平面图、鸟瞰图
双柏县自然资源局
2024年3月7日
1.区域位置图

2.总平面图

3.鸟瞰图
